Aanhanger en caravan assen vervangen
Voordelig een nieuwe aanhanger as kopen
Wij hebben een groot assortiment scherp geprijsde geremde en ongeremde assen van onder andere de merken Knott, BPW & AL-KO. Vraag hier je as gemakkelijk op!
Wat is een geremde aanhanger as?
Een geremde as is voorzien van een remsysteem. In de meeste gevallen is dit de traditionele trommelrem. Er zijn ook assen met een hydraulisch remsysteem of schijfremmen. Maar aangezien deze systemen veel kostbaarder zijn dan de trommelremmen en vaak ook aanpassingen vragen van het trekkende voertuig wordt dit niet veel toegepast in de afmontage van nieuwe aanhangwagens.
Door de oplooprem en remsysteem van remkabels wordt bij het remmen de oplooprem ingedrukt waardoor de remkabels de remschoenen aantrekken tegen de remtrommel en de aanhanger dus zelf remt. Neemt de druk vervolgens weer af op de oplooprem dan zullen ook de remschoenen de grip op de trommel weer los laten. Een geremde as is dus voorzien van een remtrommel met de bijbehorende remschoenen reeds er in gemonteerd. De as wordt ook altijd geleverd met de bijbehorende wielbouten.
Wat is een ongeremde aanhangwagen as?
Een ongeremde as voor een aanhanger is een as met lagers maar zonder trommelrem. De remmende werking moet in zijn geheel van het trekkende voertuig komen. Daarom is het maximale bruto laadvermogen van een ongeremde aanhanger vaak ook niet hoger dan 750kg tot max 1050 kg omdat anders de belasting voor het trekkende voertuig te groot is. Wat is toegestaan is afhankelijk van de auto en staat vermeld in het kentekenbewijs. Er zijn ook ongeremde assen met waterdichte lagers. Dit is vooral handig wanneer je een boottrailer hebt die vaak het water in rijdt.
Waar moet je op letten als je de torsie as van je aanhanger gaat vervangen?
Allereerst is het van belang om te weten waarom je de as wilt gaan vervangen. Is de zwenkarm krom of moeten de asrubbers vervangen worden? Kies altijd hetzelfde merk As als wat er reeds onder zit om de werking van de remmen te garanderen.
Hoe kan je zien of de zwenkarm krom is?
Dit kan je goed zien wanneer je wielen van de as demonteert. Het is dan van belang om te hoek van de as op te meten zoals in onderstaande afbeelding schematisch is weergegeven. Is de hoek kleiner dan 20 graden dan is de as krom. Vervangen is dan een betere en vaak zelfs goedkopere oplossing dan repareren.

Ga je de as van de aanhangwagen vervangen? Dan zijn er een paar belangrijke technische termen die je moet begrijpen om te weten welke as je nodig hebt.
Wat is een torsie as?
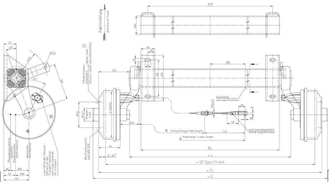
Een torsie as is de meest gebruikte as door aanhanger fabrikanten en betekent niets ander dan een rubber geveerde as. De vering zit in het aslichaam zelf. Een andere variant is bijvoorbeeld bladvering. Deze zie je nog veel in Engeland. Een torsie as is herkenbaar aan de arm die het kokerprofiel van de as aan de remtrommel bevestigd. Hier vindt u ons assortiment torsie assen. Deze zijn ook verkrijgbaar van AL-KO.
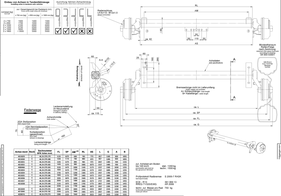
Wat is de padmaat van een aanhanger?
De padmaat is de afstand van de hart op hart afstand van de bevestigingsgaten van de as. Zie hieronder de tekening. De padmaat is de belangrijkste afmeting voor de as als u deze wilt vervangen.

Wat is de spoorbreedte van een as?
De spoorbreedte is de tussenliggende afstand tot het midden van beide banden. Afhankelijk van de ET waarde bepaalt de velg of deze meer naar binnen of naar buiten zit.

Wat is de Flensmaat van een as?
Naast de padmaat is ook de flensmaat van belang. Vaak is dit een standaard afmeting vanaf de padmaat ( 450mm) maar niet altijd. Om dus zeker te weten dat je de juiste as besteld, meten = weten! De flensmaat is de afstand tussen de beide buitenzijdes van de remtrommel. Gemeten vanaf de vlakke buitenzijde, dus zonder wielbouten en naafdop!

Wanneer wordt mijn aanhanger as geleverd?
De meeste assen kunnen wij uit voorraad leveren en worden dan ook binnen drie werkdagen op het gewenste adres geleverd. Voor de minder gangbare en maatwerk assen verschillen de levertijden. Neem voor exacte levertijden contact op met onze klantenservice.
Waar moet je rekening mee houden als je de aanhanger as gaat vervangen?
Als je de as gaat vervangen is het altijd van belang dat je dit doet met hetzelfde merk as als er reeds onder gemonteerd zat. Omdat de oplooprem, de remkabel en trommelrem een samenspel is van elementen die staat beschreven in het remschema waarop de aanhanger goedkeuring heeft gekregen voor gebruik in Europa.
Bij assen wordt altijd de padmaat en de flensmaat vermeld. Wat is dit nu precies? De padmaat bepaalt de afstand tussen de bevestigingsgaten van de as op het chassis. Dus hart op hart de afstand van de bevestigingsgaten. De flensmaat is de afstand tussen de twee buitenzijdes van de trommel. Dat is dus de buitenzijde waar de velgen op gemonteerd worden.
Je kan met bijna alle maten assen bij ons terecht. Voor je een as besteld is het belangrijk om de PAD- en FLENS-maat te weten. Ook dien je vooraf te weten welke steekmaat je nodig hebt. Lees hier hoe je de pad-, flens- en steekmaat meet.
Een ruime keuze in draagvermogens van de aanhanger assen
Het is ook belangrijk om te weten wat het benodigde draagvermogen van de as is. Normaal gesproken vind je deze informatie op het typeplaatje van de as. Draagvermogens van aanhanger assen variëren tussen de 750 en 1800 kg. Er zijn veel verschillende assen verkrijgbaar, daarom is het soms prettig om persoonlijk advies te krijgen bij het selecteren van de juiste as. mocht je na het lezen van de bovenstaande informatie nog niet de juiste as weten te vinden neem dan contact op met onze klantenservice, wij helpen je graag verder.
Tweedehands aanhanger assen
Wij adviseren om geen tweedehands assen te kopen, deze zijn vaak beschadigd. Het is beter om een nieuwe as te kopen, deze zijn over het algemeen maar iets duurder dan tweedehands assen. Het voordeel van een nieuwe as is dat je er garantie op hebt en er zeker van kan zijn dat alles naar behoren zal gaan werken.
As repareren van de aanhanger
Wanneer het mogelijk is een as te repareren zijn deze kosten vaak net zo hoog als van het vervangen van de complete as voor de aanhanger. Door de grote omloopsnelheid kunnen wij assen van KNOTT en BPW zeer voordelig aanbieden. Zo krijgt u een as van een premium merk voor een scherpe prijs direct uit voorraad geleverd.
Wanneer een as krom is en deze rechtgebogen wordt dan neemt de kwaliteit van deze as af. Daarom adviseren wij altijd een nieuwe as, zeker als deze gebogen is.
Meer informatie over torsie assen van de aanhanger
Tegenwoordig worden vrijwel alle aanhangwagens voorzien van torsie assen. Vroeger was dit anders, toen werden assen in de meeste gevallen voorzien van bladvering. Torsie assen zijn aanzienlijk beter dan blad-geveerde assen. Torsie assen hebben een betere wegligging, dit resulteert in beter rijgedrag.
Door het eenvoudige ontwerp van torsie assen zijn ze duurzamer, goedkoper en eenvoudiger te onderhouden dan andere soorten assen.
Hoe werkt een torsie as van de aanhanger?
Een torsie is is gemaakt van een as met in beide uiteinden een draagarm. Deze draagarmen zijn rondom ingeklemd door 3 of 4 rubberen strengen. Wanneer de draagarm van een torsie as onder druk wordt gezet wordt dit opgevangen door de rubberen strengen in de as zelf, zodra deze druk weer afneemt zal het rubber in de as uitzetten en zal het wiel weer naar zijn oorspronkelijke positie gaan. Dit is een simpel maar enorm duurzaam concept.
Welke aanhanger as heb ik nodig?
In dit filmpje hebben we laten zien wat de maat van een as bepaald, hoe je de afmeting van een remtrommel weet en welke remschoenen hiervoor van toepassing zijn.
80% van alle assen zijn door twee fabrikanten geproduceerd, Knott en AL-KO. Tot vorig jaar was BPW ook nog een speler maar die is door AL-KO overgenomen. Sindsdien worden er geen BPW assen meer geproduceerd.
Aan de buitenzijde van de as zitten de remtrommels. Deze hebben vaak 4 gaten (steekmaat 4x100 (bijna alle ongeremde assen)) of 5 gaten (geremde assen) waar met wielbouten de velgen op worden gemonteerd. Een remtrommel meet je op door te bepalen wat de binnendiameter is van de trommel. Als je de binnen diameter weet en de breedte/diepte van de trommel weet je ook welke remschoenen hier in passen.
Gebruik altijd hetzelfde merk trommel en remschoenen als de as. Je kan kiezen voor originele merk onderdelen of replica onderdelen. Er is geen verplichte APK keuring voor aanhangwagens en caravans dus het is de gebruiker die verantwoordelijk is voor een goede werking. Als er bij een ongeluk blijkt dat het materiaal niet orde was kan dit namelijk een vervelende strafrechtelijke nasleep krijgen. Besteed dit dus uit aan de vakman of doe het zelf en maak gebruik van Youtube instructiefilmpjes die wij ook maken.